news
新闻中心
绿地国际丝路中心3号楼人才公寓项目自主招租公告
陕西西咸沣东乐居长租房管理有限公司运营管理的绿地国际丝路中心3号楼人才公寓项目现进行自主招租,欢迎符合有资格条件及经营能力的承租人报名参加。
一、招租项目简介
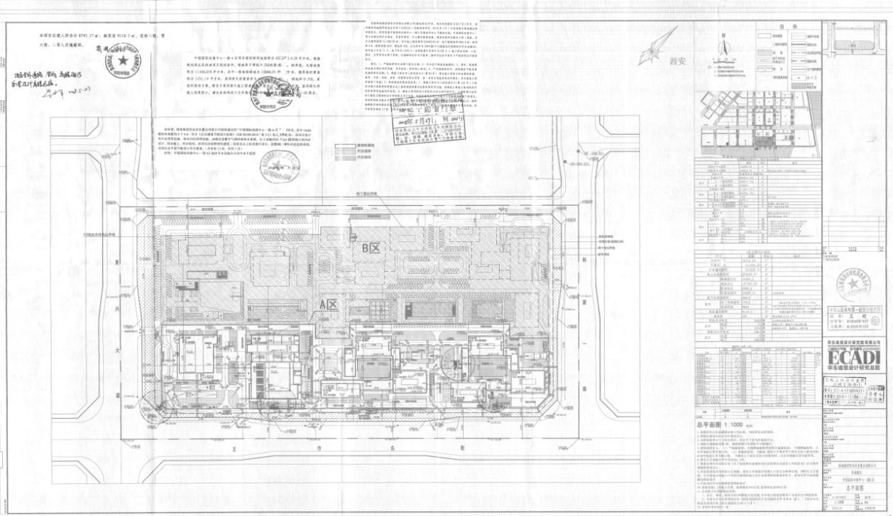
绿地国际丝路中心3号楼人才公寓项目:位于沣东新城南抵王寺东街,东至科源一路,北邻沣东大道,西接复兴大道,本次招商范围为3号楼,项目性质为商办,共28层,一层为商业(1,414.27平米,3号楼1层配套商业及4号楼连廊商业共26套),二至二十八层为公寓(19,672.76平米,459套,面积分布为38-47㎡),招租面积共计21087.03平方米,商业、公寓分布及现场情况如图所示。
项目平面图:

总平图

1-2层平面图

3-28层平面图
项目现场照片:
二、租金标准及招租要求
为便于招租人统一管理,本次招租,意向承租单位应整体承租本次招租项目。项目承租起租金不包含物业管理费、水、电费用:
项目名称 | 层数 | 性质 | 套数 | 面积 |
绿地国际丝路中心3号楼 | 1 | 商业 | 26 | 1,414.27平米 |
2-28 | 公寓 | 459 | 19,672.76平米 |
(一)项目楼栋按现状招租及交付,意向承租人可自行实地查看、了解项目现状。
(二)上述项目以“保障房性质长租公寓+生活配套”类业态招租,该公寓保障房性质不可改变。
(三)意向承租人需整体承租本次招租项目。意向承租人需向正衡工程项目管理有限公司缴纳投标保证金10万元。若未中选,将在与中选人签订正式租赁合同后的次月将承租保证金予以退还;若因中选人原因在中选通知发出之日起15个工作日内未与招租人签订正式租赁合同,则中选人的承租保证金不作退还。
(四)中选人实际经营业态需与报名业态相一致,若有变更业态需求,需报咨询机构经招租人审批通过后方可实施变更,否则招租人有权单方解除租赁合同,中选人需向招租人支付3个月租金作为违约金。
(五)租金价格为13.5元/平米起。
(六)报价低于标段租金底价的承租人参与资格将被否决。
(七)租赁期最多12年。
(八)项目租金前5年保持不变,从第6年开始每三年在基础租金上上涨5%。
(九)合同签订后,承租人根据承租人与招租人需求进行装修,承租期间,装修附着物归租赁人所有。
(十)承租人资格条件:
1.必须为完全民事行为能力的自然人或具备法人资格或其他组织,提供有效的营业执照或其他组织证明材料(自然人提供有效的身份证);
2.具有良好的财务状况和支付能力,能够按时支付租金。(其他组织及自然人参与提供承诺书。具备法人资格单位参与提供审计事务所出具的2024年度的财务报告及承诺书,财务报告包括“四表一注”(即资产负债表、利润表、现金流量表、所有者权益变动表(若有)及其附注,成立时间至提交响应文件截止时间不足一年的可提供成立后任意时段的资产负债表)或在比选日期前六个月内其开户银行出具的资信证明,以上两种形式的资料提供任何一种即可(分支机构如无法提供财务审计报告,须出具包含分支机构的财务数据的总公司财务审计报告);
3.提供近三年(2022年至比选截止时间)的良好社会信誉承诺书;
4.自然人参与提供近五年(2020年至比选截止时间)无违法犯罪承诺书;
5.自然人参与提供自然人未在“中国执行信息公开网”网站中被列入失信被执行人名单查询截图;具备法人资格及其他组织参与的提供单位未在“中国执行信息公开网”网站中被列入失信被执行人名单查询截图;
6.本次招租不接收联合体承租。
三、获取招租文件
时间:2025年11月10日至2025年11月14日,每天上午 08:30:00至11:30:00,下午13:30:00至17:00:00(北京时间)
地点:凡有意参加者,请携带单位介绍信、身份证原件(自然人提供身份证复印件及原件)到陕西省西安市航天基地雁塔南路391号正衡金融广场A幢18层前台报名。
方式:现场获取
售价:500元/套
四、响应文件的递交
递交截止时间另行通知。
递交方式:陕西省西安市航天基地雁塔南路391号正衡金融广场A幢18层会议室纸质文件递交。
五、比选时间
比选时间另行通知。
六、凡对本次招租提出询问,请按以下方式联系。
1.招租人信息
名称:陕西西咸沣东乐居长租房管理有限公司
地 址:西咸新区沣东新城科源一路与沣东一路交叉路口东南侧沣东i立方B座5楼
联 系 人:章振
电 话:029-89501688
2.咨询机构
名称:正衡工程项目管理有限公司
地址:陕西省西安市航天基地雁塔南路391号正衡金融广场A幢18层
联系人:周雯婷、岳欢、郑维肖
联系电话:029-87515803